En IDP. Ingeniería, Medio Ambiente y Arquitectura.

Ámbito de trabajo: Responsable del Departamento de Arquitectura.

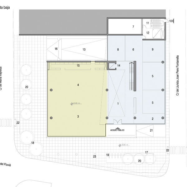
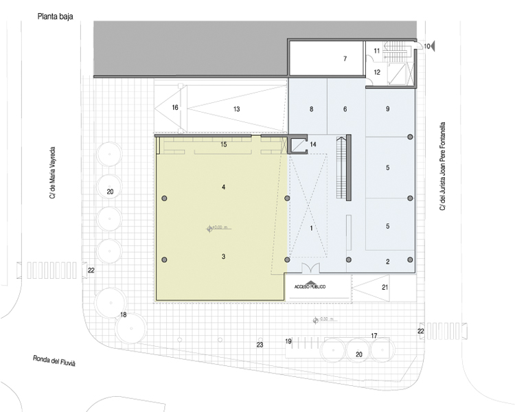
2008 Edificio para la Seguridad Social de Olot.

Girona. 5.300 m²

Fase: Concurso Público.